How our plans are designed
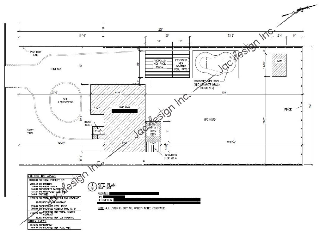
At Jac Design Inc., we can assure you the highest quality available in all site plans. We draft all our site plans using CAD software to ensure cleanliness, accuracy, and ease of reading; this helps to avoid frustration and errors on the job site. In addition, we ensure that each of our designs are thoughtfully and strategically drafted.
All our house plans are designed to meet or exceed the current Ontario Building code laws.
What’s included in the plans?
The final set of site plans will include the following:
As well as assisting you with design and layout possibilities for all interior & exterior elements, we also design and stamp all structural components for the house with our BCIN number as per Part 9 Ontario Building code.

